837 Gladstone Avenue, Junction, Toronto (W12352271)
$1,690,000
837 Gladstone Avenue
Junction
Toronto
basic info
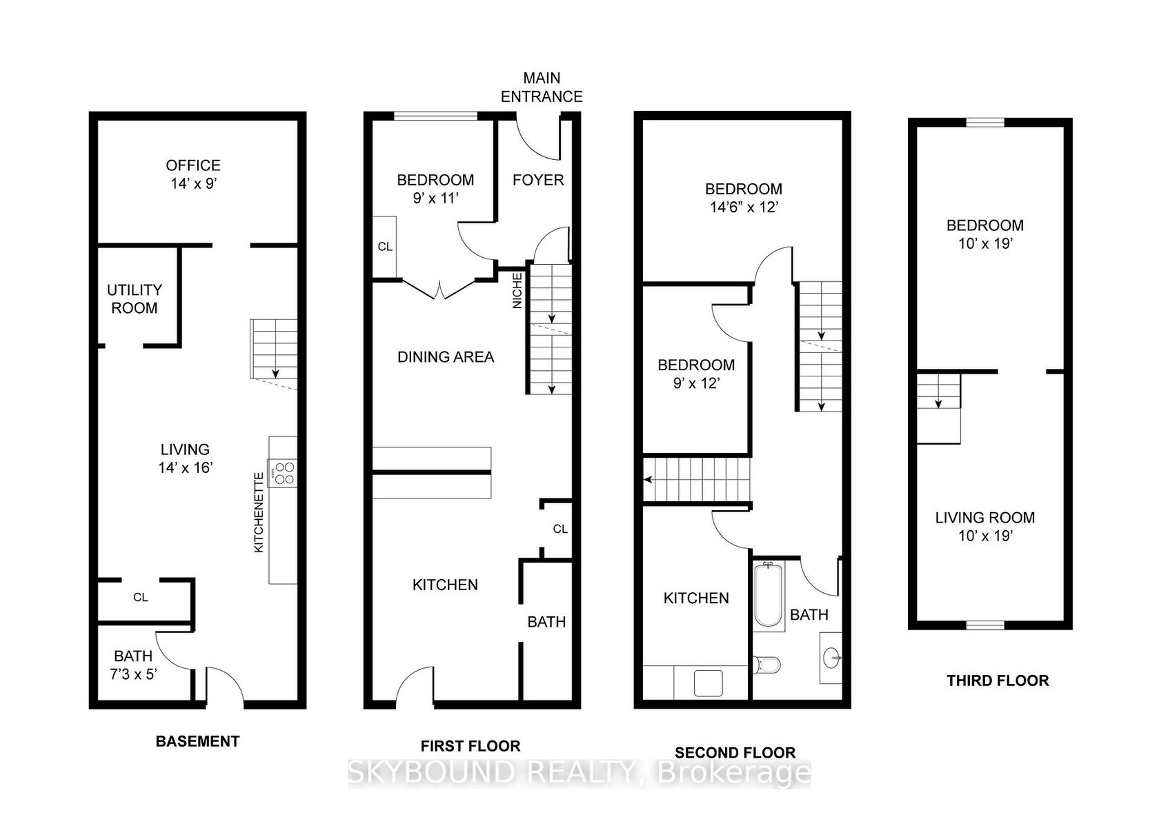
5 Bedrooms, 3 Bathrooms
Size: 2,000 sqft
Lot: 3,307 sqft
(20.67 ft X 160.00 ft)
MLS #: W12352271
Property Data
Taxes: $5,900 (2024)
Parking: 3 Parking(s)
Duplex in Junction, Toronto, brought to you by Loree Meneguzzi
Welcome to 837 Gladstone Avenue - a rare opportunity in one of Toronto's most exciting growth corridors! Tucked away on a quiet street in the heart of Wallace Emerson, this solid three-storey detached home sits on one of the deepest lots in the neighbourhood - offering incredible flexibility for end-users, investors or developers. With updated electrical and plumbing (2002), a brand new paved driveway, new AC and roof, 7-year old furnace, this well-maintained home is move-in ready and income producing! Configured as a legal duplex with separate entrances, the property boasts: three spacious kitchens, three full bathrooms, large principal rooms throughout, separate basement entrance, rear parking for up to three cars. The deep backyard opens the door to significant expansion possibilities - build a laneway or garden house with three bedrooms or more like the neighbouring property, or enjoy the space as a lush private retreat. Location is everything here. You're just steps from Wallace Emerson Community Centre featuring a pool, gym, ice rink, bike park and library. Walk to Dovercourt Park, Casa Do Alentejo Cultural Centre, top-rated schools, grocery stores, pharmacies and a vibrant mix of cafes, restaurants and breweries. The Galleria Mall redevelopment - nearing completion - is transforming the neighbourhood into a lifestyle destination, bringing new energy, amenities and long-term value. Quick access to Dufferin subway station ensures a seamless commute downtown. Live in one unit and rent the rest, maximize income with a full rental setup (projected up to $10,000/month), or convert into a spacious single-family home. The possibilities are endless in a neighbourhood that's fast becoming one of Toronto's most dynamic communities.
Listed by SKYBOUND REALTY.
Brought to you by your friendly REALTORS® through the MLS® System, courtesy of Brixwork for your convenience.
Disclaimer: This representation is based in whole or in part on data generated by the Brampton Real Estate Board, Durham Region Association of REALTORS®, Mississauga Real Estate Board, The Oakville, Milton and District Real Estate Board and the Toronto Real Estate Board which assumes no responsibility for its accuracy.
Want To Know More?
Contact Loree now to learn more about this listing, or arrange a showing.
specifications
| type: | Duplex |
| style: | 3-Storey |
| taxes: | $5,900 (2024) |
| bedrooms: | 5 |
| bathrooms: | 3 |
| frontage: | 20.67 ft |
| lot: | 3,307 sqft |
| sqft: | 2,000 sqft |
| parking: | 3 Parking(s) |





